企业名称:青岛德尔通用环保科技有限公司
电话:15662696199
联系人:张经理
邮箱:15662696199@163.com
地址:青岛市胶州市胶东工业园
微信号:15662696199

包装印刷行业的VOCs排放主要集中在印刷、烘干、复合和清洗等生产工艺过程中,主要来源于油墨、粘合剂、涂布液、润版液、洗车水,溶剂等含VOCs的物料的自然挥发和烘干挥发。软包装印刷是VOCs废气排放大户,估算超过120万吨/年。
从2015年起,包装印刷业被国家列为VOCs排污收费试点行业,软包装印刷行业面临巨大环保压力,软包装行业的VOCs治理是一个系统工程。
软包装印刷废气具有以下特点:废气风量大浓度低;废气风量、浓度变化大;开机、换单时间不固定;溶剂成分复杂多变;不受控部分多,包含墨槽封闭性、烘箱密闭性、车间环境气流流向、车间温度等。
因此,包装印刷行业VOCS废气治理工况异常复杂,从二十世纪九十年代起,我国广大软包装从业者及相关学者就不断探索VOCS废气排放的治理技术路线,经历了活性炭吸附、溶剂回收、催化燃烧、转轮+RTO、等离子分解、光催化分解等各种技术。
这些治理技术,要么处理不达标,要么能耗巨大,要么会产生二次污染,一直没有获得良好的经济和社会效益,在软包装印刷行业并没被使用者认可。
通过对近30多家软包装企业实际案例应用跟踪发现,“减风增浓+RTO”技术路线,有效的解决了包装印刷车间有组织废气的净化问题,对印刷车间无组织废气处理的效果微乎其微,如何全面的解决软包装印刷车间无组织的VOCs废气排放成为需要探索的新课题。
本文以一个标准的软包装印刷车间为例进行计算说明,该车间配置4台10色车速200m/min的印刷机和2台车速150m/min的干复机,车间全部密闭,空调送风。
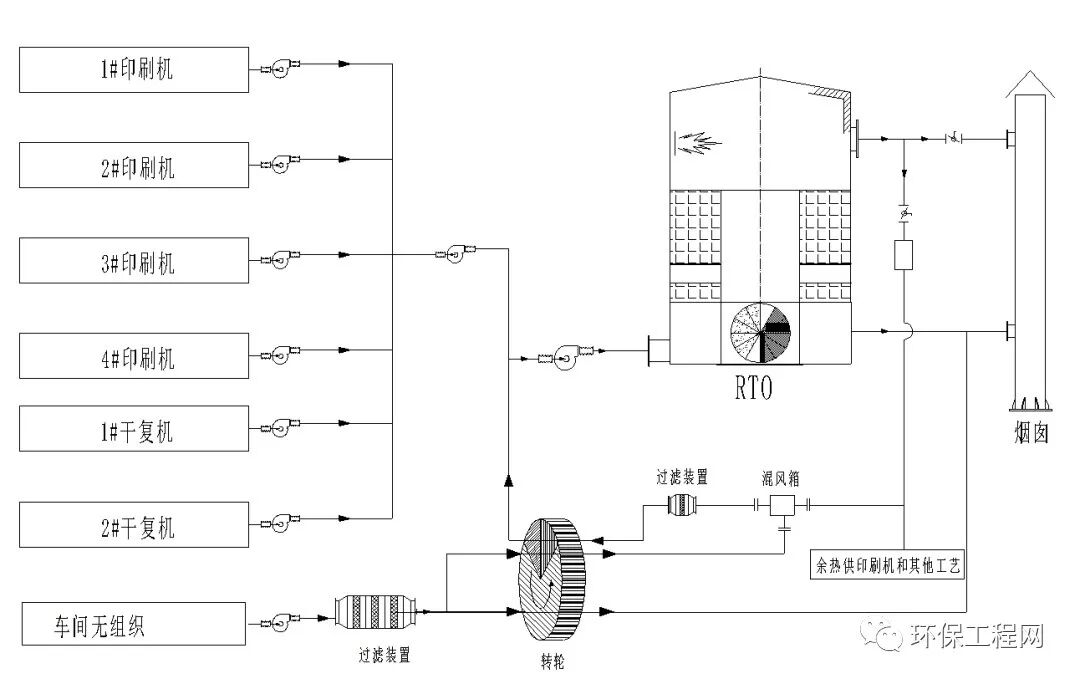
▲包装印刷废气整体解决方案流程图
一、车间总体布局规划
此软包装印刷车间的环保治理要求即要满足管道排风和车间内部环境环保VOCS排放≤50mg/m3的标准,又要满足GMP认证净化要求,还要满足工业制造企业节能将耗要求。
该印刷车间物流通道设计在印刷机的两侧,通道宽度为6米。印刷机操作侧设计人流通道,宽度为3米。印刷机两两背对背放置。2台干复机边放在车间的端头。
车间长度45米,宽度40米,有效使用面积1800M2。印刷机净高度为3.3米,带加末色长烘箱和翻转料架后印刷机高度为3.7米,此印刷车间吊顶高为4米。进排风管道设置在吊顶上方。
▲车间布局图
二、车间环境无组织气流管理及收集
此车间按照GMP要求建设,为10万级净化车间。GMP标准中第四十八条,规定洁净区与非洁净区、不同级别洁净区之间的压差应当不低于10pa,不同功能区之间也应当保持适当的梯度。
印刷车间的物流通道设计为空调恒温正压区,印刷车间的人流通道设计为降温正压区,印刷机和印刷机的后部设计为高温负压区。正压区为进风区域,负压区为排风区域。这样车间整体静态气流是由印刷机四周向印刷机后部流动的。
当然,排风抽风、设备的运行、人员的移动等会形成对气流流向的扰动。将印刷机四周做保温隔断,对印刷机进行封闭,如图:
▲保温隔断
隔断外的通道区域形成+10Pa的正压区,隔断里面区域形成-10Pa的负压区,隔断外部空调气流会透过隔断缝隙向隔断里面流动。由于印刷机源源不断的从墨槽下部和烘箱缝隙处大量抽走无组织气流,造成印刷机后部为负压区域,空调的不断进风使印刷机四周形成正压区域,这样既可很好的控制住无组织VOCs废气的飘散。由于GMP要求车间正压,会有部分气流透过车间门窗外溢,由于量不大,本方案忽略不计。
在隔断内的印刷机油墨槽下部设置LEL减风增浓系统进风地排风抽气管,这些风抽入到印刷机干燥热风系统作为干燥新风,印刷机每色地排抽风600m3/h;同时印刷烘箱负压进风做为另一部分LEL减风增浓系统进风,印刷机每色烘箱负压抽风200m3/h;这样总的每台印刷机有组织排废抽风8000 m3/h,废气浓度达到3.5g/m3-5g/m3。
在干复机上胶工位设置隔断,对上胶工位无组织废气挥发进行隔离,隔断内部主动风机排废抽气,使隔断内部形成-1Pa的负压区,隔断外部空调气流会透过隔断缝隙向隔断里面流动。隔断抽气做为干复机烘箱加热进气,进气量为4000 m3/h;干复机烘箱负压进气1000 m3/h;这样总的每台干复机有组织排废抽风5000 m3/h,废气浓度达到4.5g/m3-5.5g/m3。
以上有组织废气由排风机送入RTO设备进行净化处理。车间总体有组织废气抽气量为42000m3/h,废气浓度在3.5g/m3-5.5g/m3之间。
▲隔断内外风压分布图
实际使用中,印刷机烘箱不可能绝对负压,在进料口、出料口总会溢出一定的废气,而这部分废气由于已经经过减风增浓了,浓度在3.5g/m3-5g/m3。
在笔者实际测量中,这部分溢出废气量因印刷机机型不同而变化很大,最高可达100m3/h,最小也有30m3/h,相当于每个色组每小时释放到车间100-500g/h。
同时,虽然印刷机油墨槽下部设置LEL减风增浓系统进风地排风抽气管,但仍然有一部分溶剂挥发到车间,作者经过大量测量数据并根据正态分布计算,这部分每个色组每小时释放到车间50-200g/h;这样总的每台印刷机给车间带来1500-7000g/h 的VOCs逸散到车间成为无组织废气。
干复机也同样,进料口、出料口200m3/h,最小也有50m3/h,相当于每台干复机每小时释放到车间225-1100g/h;同时,胶槽溶剂挥发到车间,大约100-600g/h;这样总的每台干复给车间带来325-1700g/h 无组织废气;车间总体无组织废气量约为:7-32kg/h。
为了尽量减少无组织VOCs废气的产生,需要给墨槽、墨桶、胶槽、胶桶加装密封盖子,需要改善印刷烘箱进出料附近的风嘴吹风方向,尽量减少烘箱溢风。通过密封管理后,车间总体无组织废气量约为:4.2-28.8kg/h。
通过气压压差分区和气流围挡,可以有效的将车间无组织废气集中到印刷机及印刷机后部。为有效的将这部分VOCs废气收集、销毁,印刷机、干复机后部设置无组织废气抽气管,将无组织废气变成有组织废气。
印刷机每台无组织废气抽气量为20000m3/h,干复机每台无组织废气抽气量为5000m3/h,这样车间总体无组织废气抽气量为90000m3/h。产生了新的90000m3/h的有组织废气,废气浓度在47mg/m3-320mg/m3之间,通过浓缩进入RTO处理。
三、车间空调的规划
根据车间GMP10万级净化要求,车间换气次数12次/h,压差≥10Pa,气流流速小于0.54m/s,车间温、湿度:冬季20~22℃;夏季 24~26℃;波动±2℃。
冬季湿度30-50%,夏季湿度50-70%;车间空间体积为7200 m3,换气量要大于90000m3/h;由于有组织抽风排气和无组织抽风排气总量为132000m3/h,因此车间空调进风设计为135000 m3/h;空调温差20℃,空调选择功率为65万大卡;采用循环风可以降至20万大卡。
因此,在每台印刷机操作侧上方设置空调送风管道,每条管道设置6个出风口,风速1.5m/s;车间两端物流通道上方设置空调送风管道,共2条,每条管道设置3个出风口,风速2m/s。
四、无组织废气的处理方法
车间无组织废气抽气量为90000m3/h、废气浓度在47mg/m3-320mg/m3之间,目前最为有效的处理方法就是沸石转轮浓缩+RTO技术路线。
选用一台10万风量的沸石转轮,处理效率大于90%,浓缩倍率15倍,脱附风量为6000 m3/h。该系统总用电功率122KW,脱附用热30万大卡,占地面积10米X8米。
浓缩后的废气浓度达到1.5g/m3-5g/m3之间,和有组织废气并联后一起送入RTO焚烧,基本可以实现热量平衡,不需要额外补充天然气。该印刷车间通过采用本技术方案,即实现了有组织废气的治理又完成了无组织废气治理,车间内部、厂区外部无明显臭味,环境监测和排烟口监测均达标。
同时高浓度废气抽入RTO炉进行高温氧化焚烧,VOCs高温后分解的同时会放出大量的热能,RTO装置可以将这些热能充分的回收,再送回印刷机,节约了印刷机的干燥能耗。最终实现了即达标排放又节能增效的目标。
五、总结
减风增浓后软包装印刷车间现场异味和安全风险会比以前明显增加,如何有效统筹控制比较困难,这涉及到建筑设计、工厂布局、暖通、净化、流体多个交叉学科等,以及印刷机上墨设计、烘箱设计、现场封闭和气流组织等。
本文作者结合自己经验与相关计算,给出了包装印刷车间VOCs整体治理一种解决方案。希望更多企业和学者对包装印刷VOCs治理深度治理不断研究,提升行业治理水平。
文章来源:谷腾环保网